Vatn og Veitur er hluti af Fagkaup ehf./Opið í dag 07:30 - 17:00/575 9300

Verslanir

Fagkaup

Vatn og Veitur er hluti af Fagkaup ehf.
Kt. 670169-5459
Vsk. nr. 11784

Fréttabréf

Áskrifendur fá send tilboð og boð á viðburði beint í pósthólfið

Fyrirtækið

Um okkur
Reikningsviðskipti
Mínar síður
Þjónusta
Starfsfólk

Stefnur & skilmálar

Viðskiptaskilmálar
Persónuverndarstefna
Skilmálar og stefnur
Verklagsreglur og vottanir

Sími

575 9300

Fagkaup

Hreinlætistæki - fylgihlutir

/

Baðherbergi - fylgihlutir

/

Wc hólkar

/

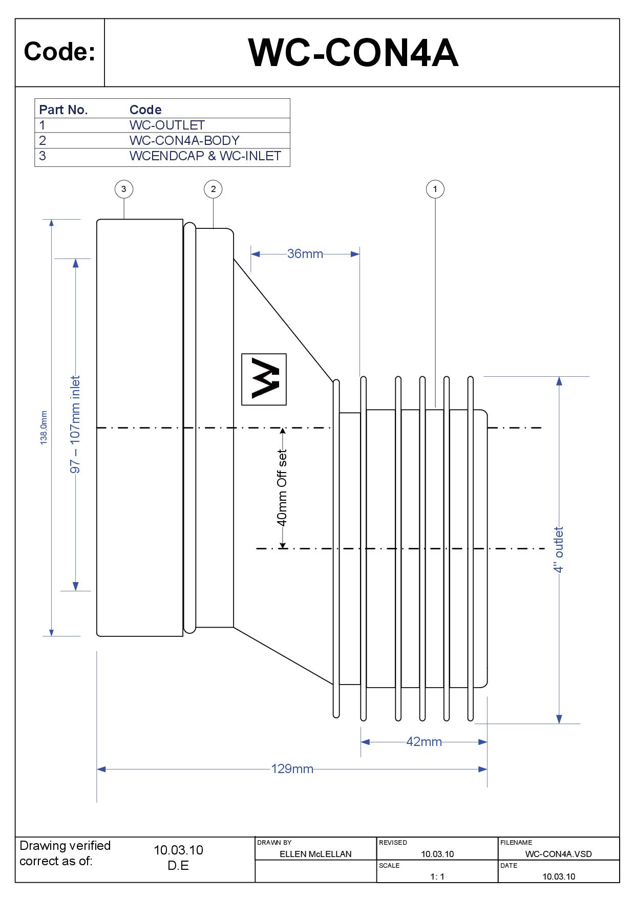
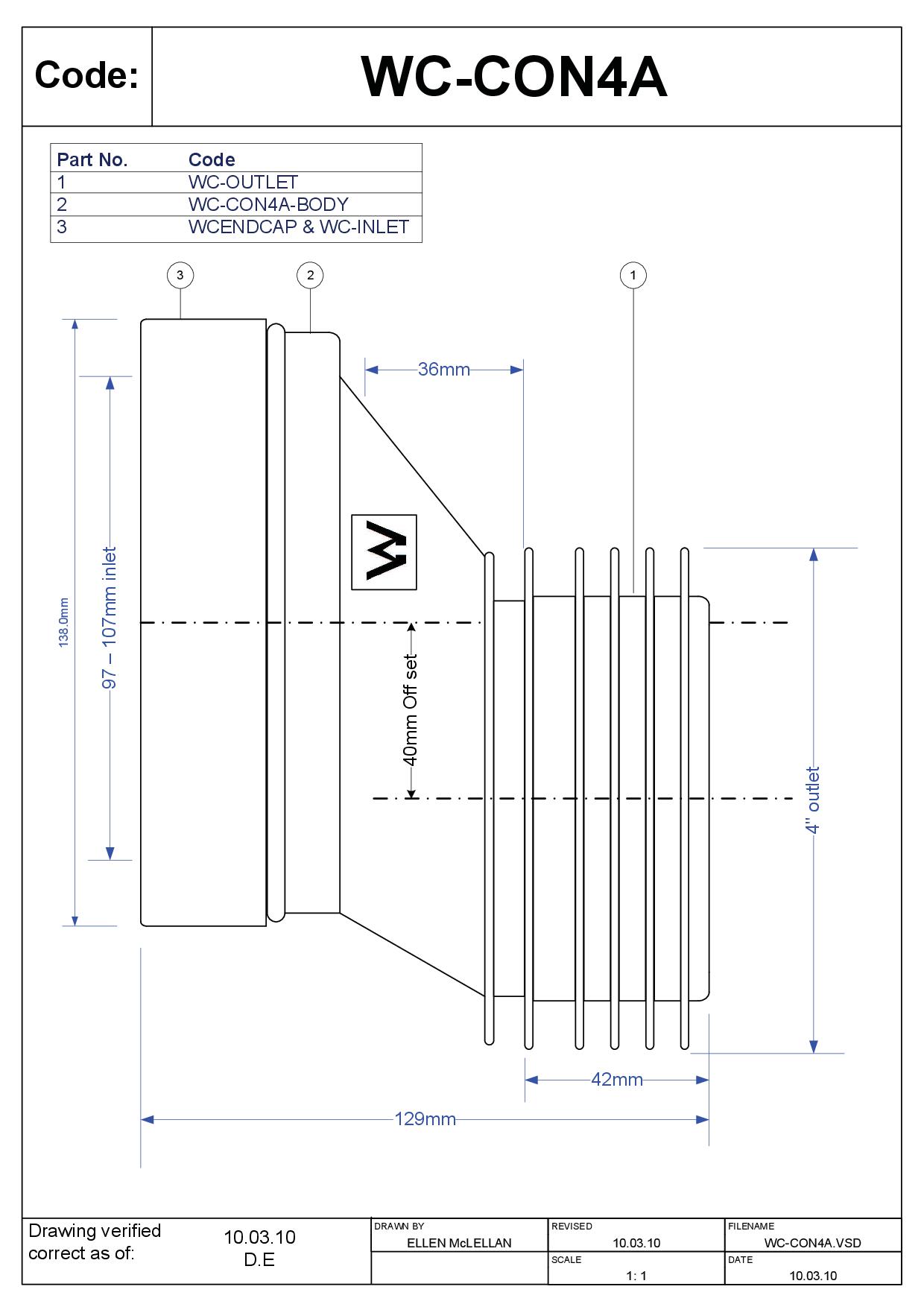
Wc hólk hjá.4cm 106 12cm con4a

Wc hólk hjá.4cm 106 12cm CON4a
Wc hólk hjá.4cm 106 12cm CON4a
Wc hólk hjá.4cm 106 12cm CON4aWc hólk hjá.4cm 106 12cm CON4a

Wc hólk hjá.4cm 106 12cm con4a

E091401

Vörulýsing

WC Hólkur - 40mm hjámiðja
Lengd: 129mm
Inntak: 97-107mm
Úttak: 4"/110mm

Eiginleikar

Stærð97-107mm x 4"/110mm - 129mm
FlokkurHreinlætistæki
GerðWC hólkar

Tengd skjöl

Sækja skrá

mcalp_leiðbeiningar.pdf