575 9300
Sprinkler og brunavarnir
Brunaslöngur
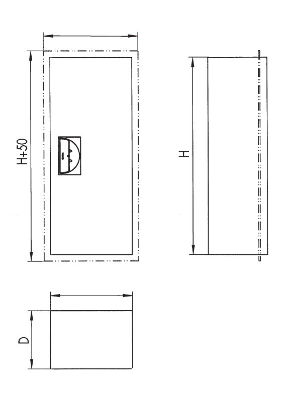
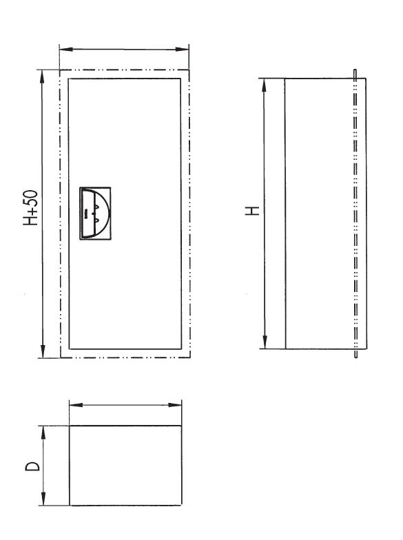
Brunaslöngur í skáp
Skápur f/slökkvit.305x795x285
NoHa_Model-3EXT-SST_Tækn.pdf